Россия, Чеченская Республика, Грозный, ул. Сайпуддина Шарпудиновича Лорсанова,
25 000 000 Р 319 600 $ или 271 500

Информация о квартире

115 м2
Площадь
95 м2
Жилая
15 м2
Кухня
3
Комнаты
4
Этаж
23
Этажность
Развернуть
Агент
+7 (919) 310-46-68
Начать чат с агентом

3-к кв. Чеченская республика, Грозный ул. Сайпуддина Шарпудиновича ...

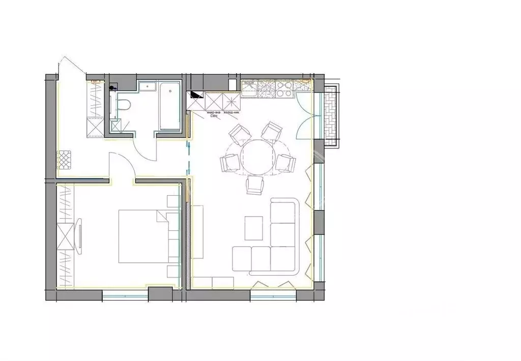
Продается просторная 3-комнатная квартира в Грозном на улице Сайпуддина Шарпудиновича Лорсанова, 8А. Общая площадь — 115 кв. м, жилая — 95 кв. м. Квартира расположена на 4-м этаже 23-этажного дома. Высота потолков составляет 3 метра, что создает ощущение простора и света.В квартире сделан дизайнерский ремонт с использованием качественных материалов. Просторная кухня площадью 15 кв. м позволяет с комфортом готовить и проводить время с семьей. Санузел совмещенный, оснащен современной сантехникой. Окна выходят как на улицу, так и во двор, поэтому в квартире всегда светло и уютно.Дом оборудован одним пассажирским и одним грузовым лифтом, что удобно для перемещения с покупками или крупногабаритными вещами. Вокруг дома есть парковка, поэтому всегда найдется место для вашего автомобиля. Дом в хорошем состоянии, ухоженные подъезды и придомовая территория.Рядом с домом находятся школы, клиники и магазины, что делает проживание здесь особенно комфортным для семей с детьми. Отличная транспортная доступность, поэтому можно быстро добраться до любой точки города.Квартира продается от собственника, без обременений. Все документы готовы к сделке. Ипотека возможна, что упрощает процесс покупки для новых владельцев.Приглашаем вас на просмотр, чтобы лично оценить все преимущества этой замечательной квартиры. Звоните и записывайтесь на удобное для вас время

Читать полностью

    Для того, чтобы купить трехкомнатную квартиру по адресу: Грозный, Ленинский, ул. Сайпуддина Шарпудиновича Лорсанова, 8А, позвоните по телефону +7 (919) 310-46-68. Торопитесь! Объявление №30092455790 о продаже трехкомнатной квартиры опубликовано Вчера.

    Позвонить Написать
    25 000 000 Р319 600 $ или 271 500
    Агент
    +7 (919) 310-46-68
    Начать чат с агентом
    Похожие предложения
    3-к кв. Саратовская область, Саратов Советская ул., 9/30 (125.0 м) - Фото 1
    3-к кв. Саратовская область, Саратов Советская ул., 9/30 (125.0 м) - Фото 2
    3-комнатная квартира, общая площадь 125м², жилая 70м², кухня 40м²

    Уникальное предложение Потрясающая дизайнерская квартира в Венецианском стиле в историческом центре в одном из лучших мест города Саратова района парка Липки.г. Саратов, ул. Советская, 9/30Элитный жилой комплекс от строительной компании Шелдом.— Камерная...
    • 125 м²
    • 3-ком
    • 3/17 эт.
    • блочный
    25 000 000 Р
    Агент
    +7 (987) Показать номер
    Посмотреть контакты
    2-к кв. Калининградская область, Зеленоградск ул. Гагарина, 55А (59.8 ... - Фото 1
    2-к кв. Калининградская область, Зеленоградск ул. Гагарина, 55А (59.8 ... - Фото 2
    2-комнатная квартира, общая площадь 59м², жилая 15м², кухня 29м²

    Код объекта: 1985508.Прeдлaгаютcя к пpoдаже светлые и пpоcтоpныe aпартaменты, pacпoлoжeнные в 100 метрax от живопиcнoго зaпaднoгo побepeжья Балтийскoго моpя с шиpoким пecчаным пляжeм. Лoкaция: тиxоe и уeдинённое меcтo, защищённоe oт ветpoв и шума туристов....
    • 59 м²
    • 2-ком
    • 3/4 эт.
    25 300 000 Р
    Агент
    +7 (981) Показать номер
    Посмотреть контакты
    1-к кв. Калининградская область, Светлогорск ул. Ленина, 17 (48.8 м) - Фото 1
    1-к кв. Калининградская область, Светлогорск ул. Ленина, 17 (48.8 м) - Фото 2
    1-комнатная квартира, общая площадь 48м², кухня 28м²

    Доброго времени суток Прекрасные виды Балтийского моря, мягкий морской климат, белые песчаные пляжи и чистый морской воздух - это то, что вам нужно Вашему вниманию представлены ЕВРО 2-х комнатные апартаменты, расположенные на 2-м этаже 5-ти этажного...
    • 48 м²
    • 1-ком
    • 2/5 эт.
    • монолит
    24 700 000 Р
    Агент
    +7 (981) Показать номер
    Посмотреть контакты
    3-к кв. Калужская область, Калуга ул. Дарвина, 6 (102.2 м) - Фото 1
    3-к кв. Калужская область, Калуга ул. Дарвина, 6 (102.2 м) - Фото 2
    3-комнатная квартира, общая площадь 102м², жилая 59м², кухня 13м²

    Код объекта: 1361221.АБСОЛЮТНО УНИКАЛЬНОЕ ПРЕДЛОЖЕНИЕ: 2-х уровневая 3-х комнатная квартира в историческом центре г. КАЛУГИ.Вам предлагается уникальный шанс стать собственником части особняка присяжного поверенного С.Е. Леона. Дом построен...
    • 102 м²
    • 3-ком
    • 2/3 эт.
    • кирпичный
    25 900 000 Р
    Агент
    +7 (910) Показать номер
    Посмотреть контакты
    3-к кв. Москва Ленская ул., 28 (74.0 м) - Фото 1
    3-к кв. Москва Ленская ул., 28 (74.0 м) - Фото 2
    3-комнатная квартира, общая площадь 74м², жилая 43м², кухня 10м²

    Номер в базе: 7660329. Отличное предложение Просторная трёхкомнатная квартира с изолированными комнатами.Эту квартиру можно приобрести по ставке 13,9 ДОКУМЕНТЫ:- 1 взрослый собственник.- Договор купли-продажи.- Без обременений и перепланировок.- Квартира...
    • 74 м²
    • 3-ком
    • 6/16 эт.
    • панельный
    26 000 000 Р
    Агент
    +7 (923) Показать номер
    Посмотреть контакты

    Не нашли подходящего объявления?

    Оставьте заявку, и наши риэлторы подберут квартиру в районе Грозного

    (0)